JAKOTUKKI WEHOFLOOR 10-LÄHTÖ 630mm.
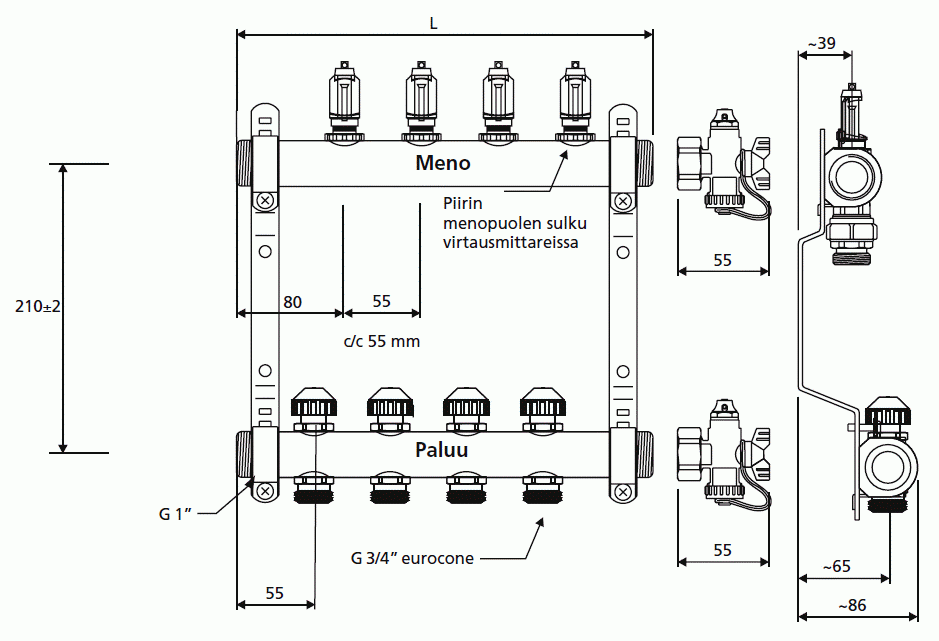
Messinkinen WehoFloor-jakotukki toimii lattialämmitysjärjestelmän kannalta merkittävässä osassa.
Jakotukin kautta tapahtuu veden jakelu huoneissa oleviin lämmityspiireihin.
WehoFloor-jakotukin jokaisella lämmityspiirillä on oma virtausmittari, mikä helpottaa esisäätöä ja säästää aikaa asennusvaiheessa.
Erinomaiset virtausominaisuudet:
WehoFloor-jakotukin kautta tapahtuu veden jakelu huoneistoissa oleviin lämmityspiireihin.
Jakotukin asennus- ja säätöominaisuudet vaikuttavat näin koko lattialämmitysjärjestelmän toimintaan.
WehoFloor-jakotukki on valmistettu putkimuotoisesta messingistä, joten sen virtausominaisuudet ovat erinomaiset.
Myös jakotukin itse aiheuttama painehäviö jää hyvin pieneksi.
Se on myös erittäin asennusystävällinen.
Jakotukki toimitetaan aina valmiiksi koottuna, jolloin jakotukeissa ei ole liitoskohtien vuotomahdollisuutta.
Virtausmittarit helpottavat esisäätöä.
Suunnitelmassa ilmoitetut painehäviöt ja virtaamat säädetään jakotukin paluupuolen säätöventtiilistä.
Virtaamat todetaan menopuolella olevista virtausmittareista.
Virtaamien säätäminen piirikohtaisesti varmistaa kaikkien piirien tasaisen toiminnan.
WehoFloor-jakotukin jokaisella lämmityspiirillä on oma virtausmittari, mikä helpottaa esisäätöä ja säästää aikaa asennusvaiheessa.
Oikeilla säädöillä varmistetaan lämmön riittävyys kaikissa huoneissa.
Esisäätöön ei normaalisti tarvitse tehdä muutoksia myöhemmin.
Jakotukin päätyventtiileistä lattialämmitysjärjestelmä voidaan täyttää ja ilmata.
Ilmaus on tehtävä huolellisesti, jotta veden kierto putkistoissa on varmistettu.
Tekniset tiedot:
• Tuotemerkki: Wehofloor
• Leveys: 630.0 mm
• Piirien lukumäärä: 10
• 1'' laippatiivisteinen
• Materiaali: Messinki
Toimitussisältö:
• 2 pääteosaa yhdistetyin täyttö- ja tyhjennyshanoin
• 2 ilmapoistoventtiiliä
• Menopuolella virtausmittarit, joissa roskasuodin sekä piirikohtaiset sulut piirien täyttöä ja ilmaamista varten
• Esisäädettävät paluuventtiilit, joihin kiinnitettävissä elektroninen toimilaite
• Seinäkannakkeet
L=630 mm
